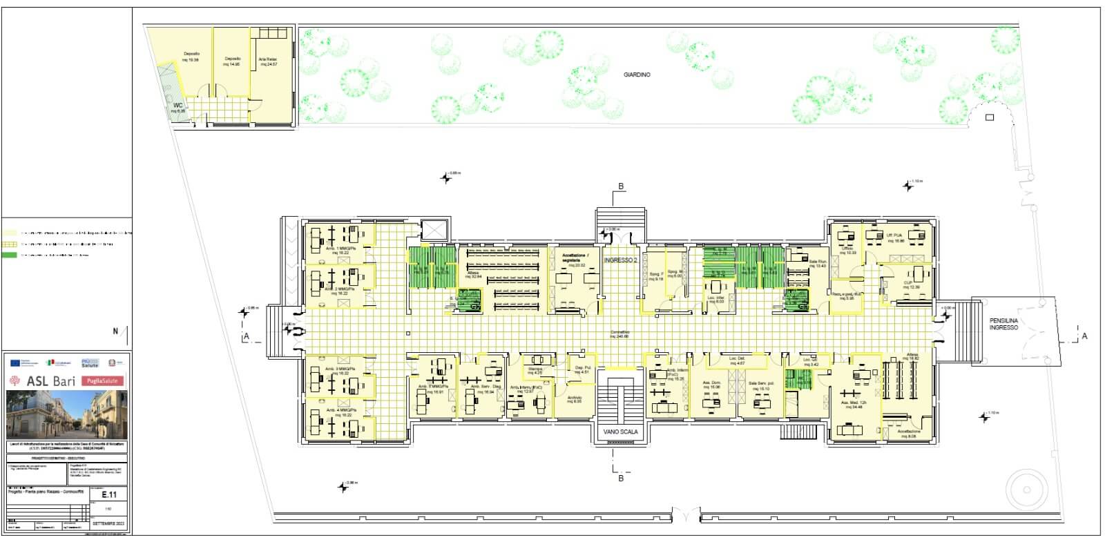
Oggi, 19 dicembre, è partito ufficialmente il cantiere per la realizzazione della nuova Casa della Comunità a Noicattaro, che troverà sede nell’ex scuola dell’infanzia di via Cappuccini.
L’iniziativa, sostenuta da un investimento di 1,4 milioni di euro stanziati dal Piano Nazionale di Ripresa e Resilienza (PNRR), prevede la ristrutturazione completa dell’edificio per trasformarlo in un centro polifunzionale dedicato all’assistenza sanitaria di prossimità.
Presenti al sopralluogo il direttore generale facente funzioni dell’ASL Bari, Luigi Fruscio, e il sindaco di Noicattaro, Raimondo Innamorato, entrambi entusiasti di questo nuovo traguardo. «La Casa della Comunità rappresenta un punto di riferimento fondamentale per la nostra comunità – ha sottolineato il sindaco -. Un luogo dove i cittadini potranno trovare risposte ai loro bisogni sanitari, grazie alla presenza di un team multidisciplinare di professionisti».
La nuova struttura, oltre a offrire servizi sanitari di alta qualità, sarà caratterizzata da un design moderno e funzionale, con spazi ampi e luminosi e un’attenzione particolare all’efficienza energetica e alla sostenibilità ambientale.












